Til beboere

Til beboere

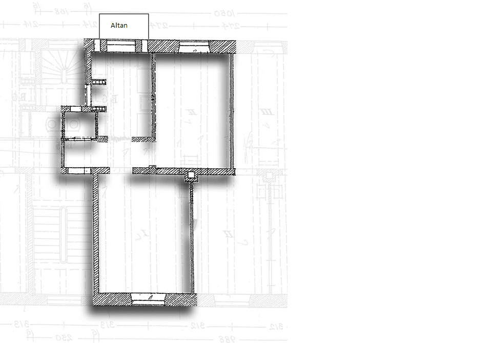
Rummelig 2-værelses.

Stor 2-værelses, begge rum har vinduer mod Stefansgade. Fra køkkenet er der udsigt til den grønne gård.

Lang fordelingsgang, med et indbygget skab for enden. Fra fordelingsgangen er der adgang til alle rum.
Køkkenet fremstår velholdt med det originale rammekøkken, bordplade og låger er dog skiftet i starten af 60´erne.

Plankegulvene i lejligheden har været udsat for minimalt slid, da der har været tæpper på. Køkkengulvet er belagt linoleum.

Der hører et stort kælderrum til lejligheden

2-værelses lejlighed

Lejligheden er beliggende på 4.sal på Humlebækgade ud mod Rungsted Plads. I Stefans-kvarteret som Andelsforeningen er del af finder du flere grønne områder i form af Nørrebroparken og Assistents Kirkegården, samt et meget pulserende cafelive i gaderne på og omkring Jærgersborggade og Stefansgade.

Lejligheden er en 2-værelses på 56 kvm. Der er to adskilte rum ud mod en gang, hvilket betyder at lejligheden kan fungere som delelejlighed til studerende. WC baderum og køkken er installeret af tidligere ejer i 2000, og hvidevare i køkkenet er af nyere dato.

I køkkenet er der udgang til en sydvendt altan med sol fra kl10-21 i sommermånederne. Generelt er det godt lys indfald i lejligheden da der ikke er bygninger overfor nogle af vinduerne.

Andelsforeningen er veldrevet, og bygningerne er velholdte. Der er 5 min. gang til den nye metrostation, som åbner 2019. Kom og kig om det skulle være noget fra dig.

2-værelses med udsigt over Rungsted Plads

Lejligheden er 56 kvm og særdeles veludnyttet. Lejligheden ligger med udsigt til Rungsted Plads på den ene side og sydvendt altan mod gården på den anden.

Lejligheden består af en stor stue med udsigt til Rungsted Plads. Stuen har en flot råvæg og fremstår i god stand.

Hyggeligt køkken, hvor der i forlængelse er sydvendt altan, hvor både morgensol og aftensol kan nydes. Soveværelset der vender mod gården er stort og lyst med plads til stort klædeskab, kontorplads eller lignende.

nyhedsbrev februar 2018

Det er muligt at få tilsendt nyhedsbrev fra foreningen på e-mail. Det eneste

du skal gøre er at tilmelde dig på hjemmesiden www.borupsplads.dk. På

denne måde kan du altid være orienteret om, hvad der rører sig i

foreningen.

Vi har nu fastsat følgende datoer for arbejdsweekender i 2018. Der er tale

om følgende dage: 14/4, 22/4 samt weekenden 29. og 30. september. Vi

prøver, som noget nyt, at afholde forårs-arbejdsdagene forskudt, for på den

måde bedre at kunne planlægge og fordele arbejdsopgaverne. Men

tidspunktet er fra 10 – 15, alle dage.

Vi har haft afholdt generalforsamling og ekstraordinær generalforsamling.

Vi har bl.a. fået vedtaget ændringer til husordenen samt vedtægterne. Der

har været nogle gode og spændende diskussioner J

De nye vedtægter samt den opdaterede husorden kan findes på vores

hjemmeside, under ”Dokumentation om foreningen”.

LYS OG RUMMELIG LEJLIGHED I STEFANSGADEKVARTERET

Lejligheden er på 112 m2 og er beliggende på 4. sal på Humlebækgade 45. Lejligheden er sammenlagt af to mindre lejligheder i 2017. Lejlighedens hjerte er et stort køkken/alrum med et dejligt lysindfald – særligt i solskin. Derudover er der en stue, to gode værelser, bryggers med vaske-tørremaskine (tidligere køkken i den ene lejlighed) og badeværelse med brus. Herudover er der et nedlagt badeværelse, som pt. bruges som kosteskab, men som med fordel kunne sammenlægges med det fungerende badeværelse. Hele lejligheden er hvidmalet og har lyse trægulve (bryggers undtaget). Lejligheden har to altaner ud mod den skønne og børnevenlige gård, og i sommerhalvåret er der sol på altanerne stort set hele dagen. Selve kvarteret omkring Stefansgade er sprudlende og fyldt med hyggelige cafeer og spændende specialbutikker. Andelsboligforeningen er veldrevet og bygningerne er velholdte. Kom og kig – og se om lejligheden er noget for jer.

 

På plantegningen indikerer farver følgende:

  • Pink: Væg nedlagt i forbindelse med etablering af køkken/alrum
  • Grøn: Nedlagt badeværelse
  • Rød: Nedlagt væg mellem de to oprindelige lejligheder

Lejligheden fremvises kun til åbent hus arrangementet søndag d. 28/1. Det er ikke muligt at aftale fremvisning på andet tidspunkt.

Lys og hyggelig 2-værelses 56 kvm. lejlighed med altan.

Lejligheden er beliggende  på 1. Sal  i nærheden af Nørrebro Parken, Assistents Kirkegården samt det livlige Stefansgadekvarter og 4 km fra søer og Rådhuspladsen.

Lejligheden er total istandsat 2009 med filt på hvidmalede vægge, indfatninger og paneler, samt med ny el uden synlige kabler i hele lejligheden. Du mangler ikke stikkontakter i denne lejlighed.

Bad/toilet er  fra 1998  og er brugbart med nyt blandingsbatteri fra december 2017.

Køkkenet er totalistandsat med et Ikea-køkken med meget skabsplads samt indbygningsovn, emhætte og  nedfældet induktionskogeplade og køleskab med fryser. Der er tillige vaskemaskine og tørretumbler i køkkenet. Nyt blandingsbatteri fra december 2017. Væggen mellem køkken og entre er fjernet og loftet sænket med gips og med indbygningsspot.

 

Andelsforeningen er veldrevet, og bygningerne er velholdte. Der er 5  min. gang til den nye metrostation, som åbner 2019. Kom og kig om det skulle være noget fra dig.

Flot gennemrenoveret, mezzanin-lejlighed i moderne stil

Lejligheden er beliggende i andelsforeningen A/B Borups Plads, tæt ved den hyggelig Jægersborggade, Nørrebroparken og få hundrede meter fra den kommende Metro ved Jagtvej.

Lejligheden er omdannet fra 3 vær. til 2 værelses lejlighed i forbindelse med renovering 2013. Der blev her lavet nyt el i lejligheden. Derudover nedlagt en væg til et åbent køkken-alrum samt nye VVS installationer til både køkken og bad.

 

Lejligheden indeholder: Entré, stort åbent køkken-alrum med hvide grebsfrie elementer (IKEA), med flot massiv træbordplade i lys birk. Hvidevarer: LG amerikanerkøleskab, Bosch vaske/tørremaskine, Siemens indbygningsovn, Ikea induktion og emhætte med kulfilter.

 

Der blev i 2013 indsat nyt badeværelse (udvidet areal) med store mørke klinker, nyt brusesæt m. unidrain, toilet, vask og blandingsbatteri.

Til lejligheden medfølger kælderrum med nem adgang via bagtrappen. Via bagtrappen er der også adgang til dejlig, stor, grøn og lukket baggård med hyggelig atmosfære. Fra baggården er der mulighed for aflåst cykelparkering i kælder.

Lys og rummelig hjørnelejlighed i Stefansgadekvarteret

Lejligheden er på 126 m2 og ligger 1. sal på hjørnet af Stefansgade og Borups Plads, hvilket giver et dejlig stort lysindfald i stuerne. Lejlighedens hjerte er et stort køkken/alrum med køkken fra 2011. Derudover er der en meget stor hjørnestue og to store værelser, samt et rummeligt badeværelse med vaskemaskine og tumbler, bruser og badekar. Hele lejligheden er hvidmalet og har lyse trægulve. Lejligheden har en mindre altan ud mod den skønne og børnevenlige gård. Selve kvarteret omkring Stefansgade er sprudlende og fyldt med hyggelige cafeer og lækre butikker. Andelsboligforeningen er veldrevet og bygningerne er velholdte. Kom og kig – og se om lejligheden er noget for jer.

Nyhedsbrev december 2017

Lukning af vand- og varmeforsyning. Det er forbudt for ejendommens beboere samt beboeres VVS’ere selv at lukke for ejendommens forsyningslinjer. Såfremt man skal have lukket for noget, skal man kontakte varmemesteren, som så kan oplyse om varslingstider samt hjælpe med at få lukket for hanerne. Husk at kontakte i god tid, så varslingstiderne kan overholdes.

Nye vand- og varmemålere sat op. Vi har færdiggjort og fået installeret målerne. Der mangler kun få beboere, som vil blive kontaktet af varmemesteren – så vi kan blive helt færdige.

Generalforsamling torsdag 7. december. Vi afholder ordinær
generalforsamling torsdag d. 7. december i beboerlokalet, fra kl. 19 – 21. Forslag er modtaget og opsat i inforrmationstavlerne i portene. Vi glæder os til at se jer

Vi har fået udarbejdet en vedligeholdelsesplan for ejendommen.
Den er nu tilgængelig i dokumentarkivet på hjemmesiden.
Her kan man læse om ejendommens tilstand.

Indsamlede cykler fra arbejdsweekenden er afhentet. De opbevares nu på hittegodskontoret, og kan afhentes indenfor 4 uger. Herefter vil de blive solgt på cykelauktion.

 

Bore- banketider:                                                                     Bestyrelsen har kontortid

Hverdage: 7-19                                                                        Tirsdage lige uger ml. 19-20 Lørdage: 9-18

Forslag til ordinær generalforsamling 7/12 2017

Forslag 1:
Forslag til at hæve andelskronen til værdien 22.000,-

 

Forslag 2:
Vedr. bestyrelsens forslag 2: ejendommens installationer skal være tilgængelige.

Rørkasser omkring faldstammer og stigstrenge, behøves IKKE at være aftagelige. Dog skal målerinstallationer, åbne/lukke kuglehaner (eller hvad det hedder) være tilgængelige. Ved renovering af foreningens rør, påhviler det den enkelte andelshaver at gøre rør tilgængelige, samt selv at stå for/finansiere reetablering af rørkasse. Det er ikke et fradrag ved salg/vurdering af lejligheder, men derimod en forbedring, hvis det er udført korrekt.

Argument: Det er ikke almindeligt at man som beboer eller håndværker skal tage højde for at rørkasser skal være aftagelige, andet end at der som minimum skal sidde en inspektionslem foran målere og lukkehåndtag.

 

Forslag 3:
Ændringsforslag til paragraf 14, stk. 2, punkt a) af vedtægterne:

“Til den, der indstilles af andelshaveren, når overdragelsen sker til en person, med hvem han/hun er beslægtet i lige op- eller nedstigende linie, samt søskende med samme mor og/eller far”. (Man skal have boet i lejligheden i mindst 2 år, for at benytte denne regel).

 

Forslag 4:
Vedtægternes § 14 stk. B). Ændres fra:

Andre andelshavere, der er indtegnet på en venteliste hos bestyrelsen (den interne venteliste), har dernæst fortrinsret. For at blive optaget på den interne venteliste skal den pågældende have været medlem af foreningen i mindst 2 år.  På den interne venteliste har personer, der har mulighed for at sammenlægge sin nuværende lejlighed med den lejlighed, der er blevet ledig, fortrinsret, hvorefter personer, der på grund af manglende fysik gerne vil flytte til en lavere liggende lejlighed, har fortrinsret, hvorefter tidspunktet for indtegningen tillægges højeste prioritet. Sker overdragelsen i henhold til denne bestemmelse, overtager den fraflyttende andelshaver indstillingsretten til den således ledigblevne lejlighed i overensstemmelse med denne § 14.

 

  • 14 stk. 2 B). Ændres til

 

Andre andelshavere, der er indtegnet på en venteliste hos bestyrelsen (den interne venteliste), har dernæst fortrinsret. På den interne venteliste har personer, der har mulighed for at sammenlægge sin nuværende lejlighed med den lejlighed, der er blevet ledig, fortrinsret, hvorefter personer, der på grund af manglende fysik gerne vil flytte til en lavere liggende lejlighed, har fortrinsret, hvorefter tidspunktet for indtegningen tillægges højeste prioritet. Sker overdragelsen i henhold til denne bestemmelse, overtager den fraflyttende andelshaverindstillingsretten til den således ledigblevne lejlighed i overensstemmelse med denne § 14.

 

Forslag 5:
Udendørs bordtennis i gården

 

Forslag 6:
Husdyr reglement ændres til 1 kat per husstand

 

Forslag 7
Tilføjelse til Vedtægter, §12 fremleje mv.

Stk 3. Korttids-udlejning af lejligheder.

Det er tilladt at fremleje/udlåne/korttids-udleje sin lejlighed i en begrænset periode pr. år, f.eks. 6 uger om året. Det er op til den enkelte andelshaver at overholde denne begrænsning, samt det er andelshaverens pligt at kunne dokumentere hver enkel udlejningsperiode, der ikke er søgt om som i stk. I eller stk. 2.

 

Forslag 8:
Forslag til midlertidig bestemmelse gældende indtil næstkommende ordinære generalforsamling i 201X, hvor beboernes, bestyrelsens og foreningens erfaringer skal høres, debatteres og forslaget (evt, revideret) sendes til afstemning som permanent vedtægtsændring.

Grundlag for forslaget:

Det er min opfattelse at flere og flere mennesker verden over i stigende grad benytter sig af Airbnb og lignende tjenester, der bygger på principper som deleøkonomi og alternative rejse- og indkvarteringsformer. Både som gæster og som værter/fremlejere.

Det er langtfra alle foreninger, der har opstillet regler og retningslinjer for dette. Jeg mener, at vi som forening bør give mulighed for, at andelshavere i A/B Borups Plads kan benytte sig af Airbnb og lignende tjenester under ordnede og kontrollerede forhold i en periode. Derfra kan vi samle erfaringer, der kan give os alle et solidt grundlag for at tage stilling til- og om hvordan vi fremadrettet skal forholde os til udlejning gennem denne type tjenester.

For at imødekomme denne tendens og andelshaveres ønske om, at kunne fremleje deres lejligheder fremstille hermed følgende forslag.

 

 

Andelshavere må foretage korttidsudlejning via Airbnb og lignende udlejningsportaler under følgende vilkår:

  • Summen af udlejningsdage på et kalenderår må ikke overstige 42, svarende til 6 uger. Antallet af udlejningsdage er lig antallet af overnatninger. Antallet af lejedage (overnatninger) for en lejeperiode beregnes som antallet af datoer i perioden fra og med lejens start, til og med datoen for lejens ophør, minus 1. Beregningseksempel: En weekendleje strækker sig fra fredag. d.21/4- søndag.d.23/4. Lejeperioden dækker over 3 datoer; 21/4, 22/4, 23/4. Antallet af lejedage (overnatninger) er derfor 3-1=2. 2) Lejeperioden for det enkelte lejeforhold skal være på minimum 2 sammenhængende overnatninger.
  • Fremlejeperioder må ikke overlappe.
  • Ind- og udtjekning skal ske i tidrurnmet 07:00-23:00.
  • Det er fremlejers (andelshavers) ultimative ansvar, at lejer overholder foreningens vedtægter og husorden. Derfor påhviler det fremlejer (andelshaver) at informere lejer om disse forhold. Hvis lejer overtræder foreningens vedtægter eller husorden, kan bestyrelsen tage beslutning om øjeblikkeligt ophør af lejeforholdet uanset omkostninger for fremlejer.
  • Det er fremlejers (andelshaver) ansvar at informere lejer om brug af fællesarealer og affaldshåndtering. Fremlejer (Andelshaver) kan af A/B Borups Plads opkræves et gebyr hvis lejeforholdet påfører A/B Borups Plads økonomiske, administrative, drifts- eller vedligeholdelsesmæssige omkostninger.

 

Forslag 9: Bestyrelsen
Forslag om tilføjelse til foreningens vedtægter § 25 stk. 2, således at forslag der ønskes behandlet på generalforsamlingen også kan afgives digitalt.

“Stk. 2.  Forslag, som ønskes behandlet på generalforsamlingen, skal være bestyrelsen i hænde senest 8 dage før generalforsamlingen, enten via bestyrelsen@borupsplads.dk eller i bestyrelsens brevsprække i porten”. Et forslag kan kun behandles på en generalforsamling, såfremt det enten er nævnt i indkaldelsen eller andelshaverne ved opslag eller lignende måde senest 4 dage før generalforsamlingen er gjort bekendt med, at det kommer til behandling.